Dong Yang is the Best Partner
We promise that we will commit our utmost efforts to develop
new technologies and improve our product quality in a consistent
manner to achieve customer satisfaction.
Product
> Product > Refrigerant valves > Strainer
A strainer is a device that not only prevents system failures but guarantees the performance of the system by filtering contaminants such as dust and debris in the pipe which affect the system performance and fluid flow in the refrigeration or air conditioning system. It is installed in front of the automatic control system, pump, or compressor. The start of the plant or filtering of the refrigerant is required. The dedicated filter is made of stainless steel, which ensures easy cleaning at the time of maintenance.
| Size | L | H | D¢ | d¢ | Weight (kg) |
|
| A(mm) | B(inch) | |||||
| 10 | 3/8 | 85 | 60.5 | 42 | 12.7 | 1 |
| 15 | 1/2 | 115 | 99 | 80 | 16.1 | 1.8 |
| 20 | 3/4 | 115 | 99 | 80 | 21.4 | 1.8 |
| 25 | 1 | 160 | 122 | 105 | 27.2 | 3.2 |
| 32 | 1¼ | 169 | 166 | 110 | 35.5 | 4.7 |
* The above specifications may be changed without prior notice for product development and quality improvement purposes.
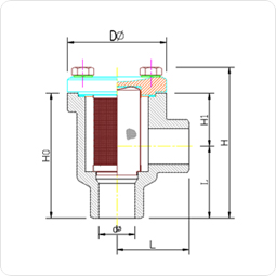
| Size | H | H0 | H1 | L | D¢ | d¢ | Weight (kg) |
|
| A(mm) | B(inch) | |||||||
| 32 | 1¼ | 147 | 122 | 52 | 70 | 35 | 100 | 6.8 |
| 40 | 1½ | 176 | 146 | 62 | 84 | 41 | 115 | 7.2 |
| 50 | 2 | 176 | 146 | 62 | 84 | 52 | 115 | 7.3 |
* The above specifications may be changed without prior notice for product development and quality improvement purposes.
| Size | H | C | D | E | F | L | Weight (kg) |
|
| A(mm) | B(inch) | |||||||
| 65 | 2½ | 337 | 223 | 145 | 18 | 88 | 300 | 13 |
| 80 | 3 | 362 | 243 | 170 | 18 | 102.5 | 300 | 16 |
| 100 | 4 | 376 | 255 | 220 | 18 | 105 | 385 | 28 |
* The above specifications may be changed without prior notice for product development and quality improvement purposes.

Tel : +82-032-862-4644 Fax : +032-866-7530 E-mail : dyltd@dyltd.co.kr
Copyright 2014 DONG YANG All rights reserved.