Dong Yang is the Best Partner
We promise that we will commit our utmost efforts to develop
new technologies and improve our product quality in a consistent
manner to achieve customer satisfaction.
Product
> Product > Unit cooler > CAP Series
All CAP series unit cooler models are manufactured under strict quality and environmental management systems (ISO 9001 and ISO 14001) to meet customers’ requirements. The CAP series unit cooler is a high efficiency product made of an aluminum fin and copper tube, which is suitable for a Freon-based new refrigerant.
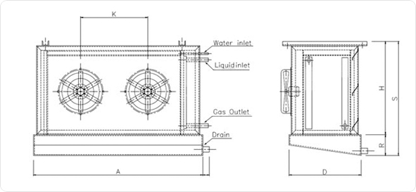
The CAP series products are classified as a ceiling type or floor installation type, depending on the field conditions and installation method. The floor installation type products are divided into front discharge, upper discharge, and intake discharge models depending on the field conditions. Classified into chilling, refrigeration, freezing, and quick freezing types, the CAP series is the best choice for meeting your requirements.
| Model | A | B | S | R | H | K | |
| CAP | 13 F | 2200 | 950 | 1200 | 350 | 850 | 900 |
| 15 F | 2200 | 1050 | 1300 | 950 | 900 | ||
| 18 F | 2580 | 1050 | 1300 | 950 | 1090 | ||
| 20 F | 2580 | 1150 | 1400 | 1050 | 1090 | ||
| 22 F | 2580 | 1250 | 1500 | 1150 | 1090 | ||
| 25 F | 2820 | 1250 | 1500 | 1150 | 1210 | ||
| 29 F | 2820 | 1450 | 1700 | 1350 | 1210 | ||
| 32 F | 3060 | 1450 | 1700 | 1350 | 2*900=1800 | ||
| 38 F | 3060 | 1650 | 1900 | 1550 | 2*900=1800 | ||
| 43 F | 3060 | 1850 | 2100 | 1750 | 2*870=1740 | ||
* The above specifications may be changed without prior notice for product development and quality improvement purposes.
| Model | A | C | E | F | G | J | K | |
| CAP | 13 U | 2200 | 2095 | 600 | 350 | 320 | 810 | 900 |
| 15 U | 2200 | 2095 | 320 | 910 | 900 | |||
| 18 U | 2580 | 2145 | 370 | 910 | 1090 | |||
| 20 U | 2580 | 2145 | 370 | 1010 | 1090 | |||
| 22 U | 2580 | 2185 | 410 | 1110 | 1090 | |||
| 25 U | 2820 | 2185 | 410 | 1110 | 1210 | |||
| 29 U | 2820 | 2185 | 410 | 1310 | 1210 | |||
| 32 U | 3060 | 2185 | 410 | 1310 | 2*900=1800 | |||
| 38 U | 3060 | 2185 | 410 | 1510 | 2*900=1800 | |||
| 43 U | 3060 | 2275 | 500 | 1710 | 2*870=1740 | |||
| Model | A | P | G | F | N | J | K | |
| CAP | 13 S | 2200 | 2365 | 600 | 1135 | 595 | 810 | 900 |
| 15 S | 2200 | 2365 | 595 | 910 | 900 | |||
| 18 S | 2580 | 2430 | 655 | 910 | 1090 | |||
| 20 S | 2580 | 2430 | 655 | 1010 | 1090 | |||
| 22 S | 2580 | 2480 | 700 | 1110 | 1090 | |||
| 25 S | 2820 | 2480 | 700 | 1110 | 1210 | |||
| 29 S | 2820 | 2480 | 700 | 1310 | 1210 | |||
| 32 S | 3060 | 2480 | 700 | 1310 | 2*900=1800 | |||
| 38 S | 3060 | 2480 | 700 | 1510 | 2*900=1800 | |||
| 43 S | 3060 | 2545 | 760 | 1710 | 2*870=1740 | |||
* The above specifications may be changed without prior notice for product development and quality improvement purposes.

Tel : +82-032-862-4644 Fax : +032-866-7530 E-mail : dyltd@dyltd.co.kr
Copyright 2014 DONG YANG All rights reserved.